本文へ移動

フロアマップ

スマートフォン用ツール
メニュー表示
  • ForeignLanguage
  • 背景変更

    • 標準
    • 黒
  • ふりがな
    • 文字拡大
    • 元に戻す
  • サイトマップ
パソコン画面表示
ページの末尾へ
蓮田市総合市民体育館パルシー 文化会館へのリンク

Hasuda city Civic gymnasiym palthy

現在位置

  1. ホーム
  2. 施設のご案内
  3. フロアマップ
印刷を開始します
  • イベント情報
    • 月別イベント一覧
    • イベントカレンダー
    • 蓮田市スポーツ推進委員主催事業
  • 施設のご案内
    • 施設概要
    • フロアマップ
    • メインアリーナ
    • サブアリーナ
    • その他諸室
    • 黒浜公園
    • 中道公園
    • トーモクグラウンド
    • 学校体育施設・社会体育施設
    • 施設の空き状況
    • 交通アクセス
  • ご利用ガイド
    • ご利用の流れ
    • ご利用料金
    • ご利用手続き(黒浜公園・中道公園)
    • パルシーパンフレット
    • 学校体育施設・社会体育施設の貸出について
    • 各種ダウンロード
    • よくあるご質問
  • 登録団体の紹介
    • スポーツはすだ
    • スポーツ協会記念誌”50年のあゆみ”

施設のご案内

  • 施設概要
  • フロアマップ
  • メインアリーナ
  • サブアリーナ
  • その他諸室
  • 黒浜公園
  • 中道公園
  • トーモクグラウンド
  • 学校体育施設・社会体育施設
  • 施設の空き状況
  • 交通アクセス
フロアマップ

1階

パルシーレイアウト図(1階).pdf(48KB)

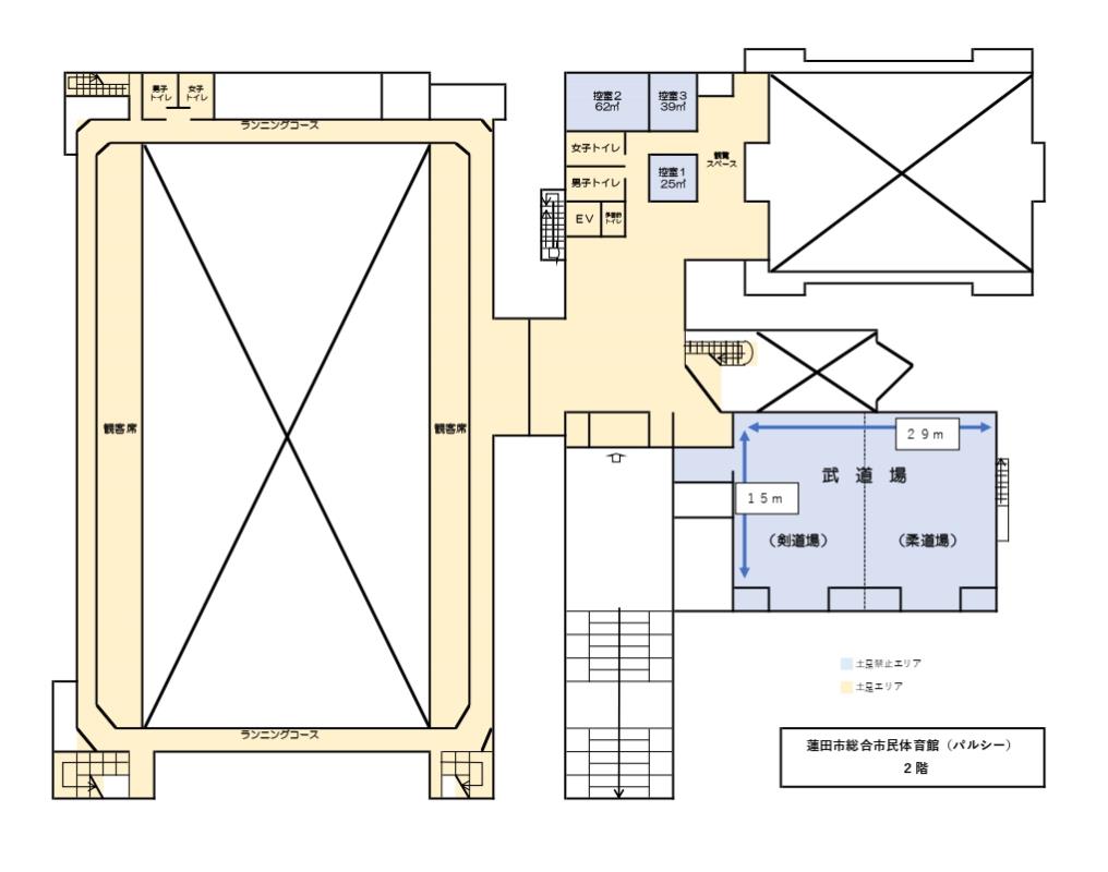
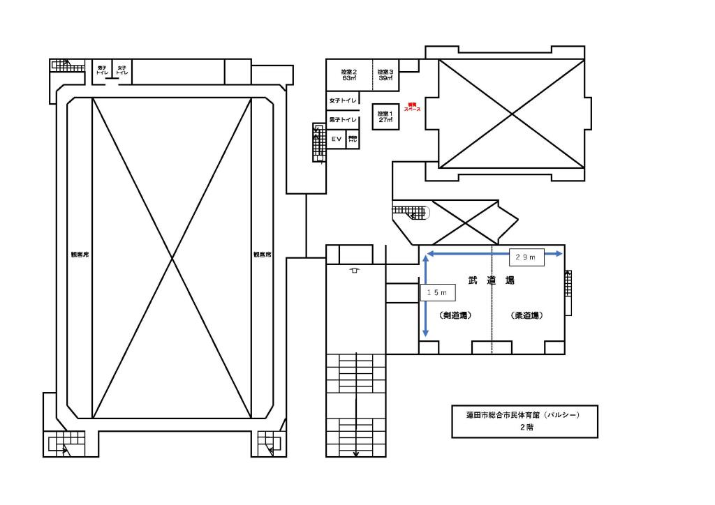
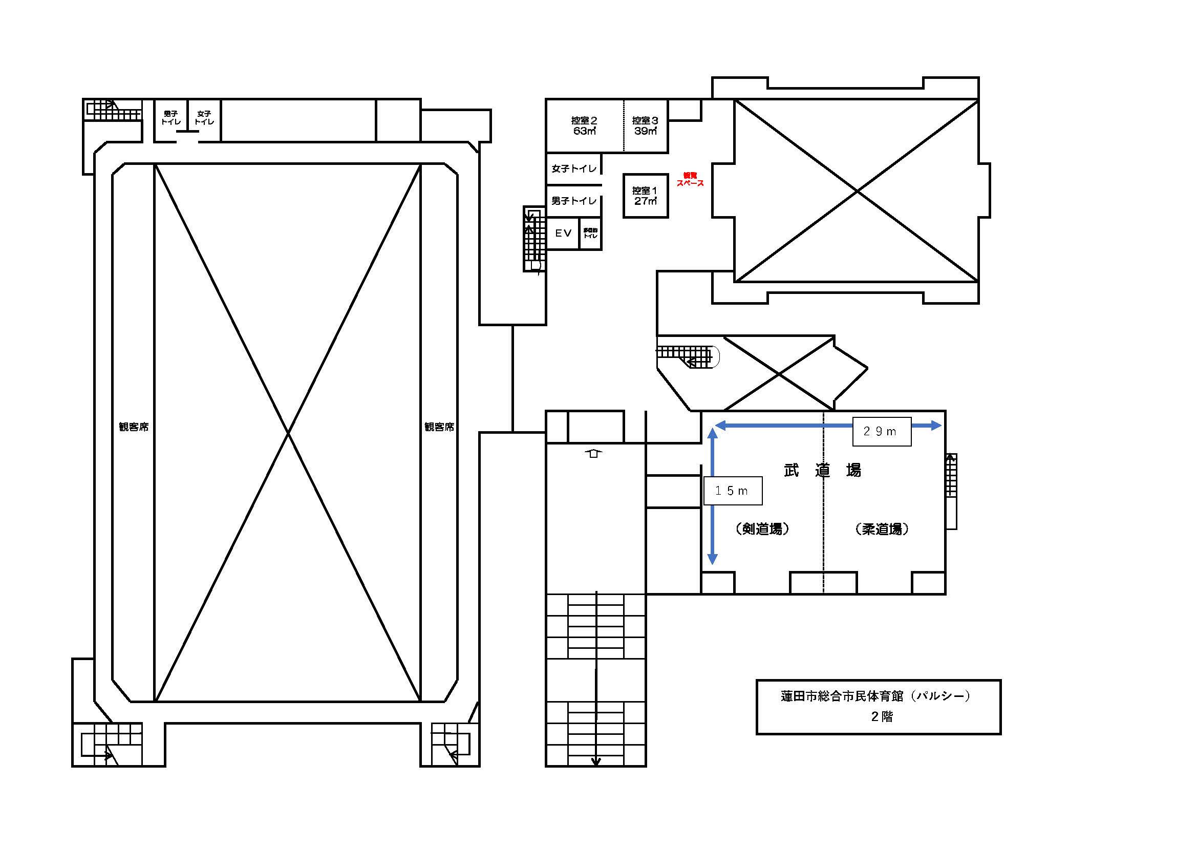
2階

パルシーレイアウト図(2階).pdf(35KB)

添付資料を見るためにはビューワソフトが必要な場合があります。詳しくはこちらをご覧ください。
スマートフォンでご利用されている場合、Microsoft Office用ファイルを閲覧できるアプリケーションが端末にインストールされていないことがございます。その場合、Microsoft Officeまたは無償のMicrosoft社製ビューアーアプリケーションの入っているPC端末などをご利用し閲覧をお願い致します。
ページの先頭に戻る
蓮田市総合市民体育館 パルシー
〒349-0133
埼玉県蓮田市大字閏戸2343番地1
TEL 048-768-1717048-768-1717
FAX 048-768-1817
メール bunkakaikan@city.hasuda.lg.jp
施設へのアクセスページに移動
開館時間 午前9時から午後9時30分
休館日 毎月第2・4月曜日(休日にあたるときは翌日)、年末年始(12月28日から1月3日まで)
  • ホーム
  • イベント情報
  • New Title
  • 施設のご案内
  • ご利用ガイド
  • 登録団体の紹介
  • サイトマップ
  • 個人情報保護方針
  • 免責事項・著作権
  • リンクについて
  • サイトの使い方サイトの使い方(スマートフォン)
  • サイトの考え方
  • お問い合わせ
  • 総合案内
Copyright (C)2024 Hasuda city cultural Hall hasutopia, Hasuda city Civic gymnasiym palthy. All Rights Reserved.
スマートフォン表示